ID_HS1
Hrubá stavba – materiál
ID_PR1
Práca
ID_ST1
Steny 157 mm
ID_ST2
Steny 207 mm
ID_ST3
Steny 257 mm
ID_ZP1
Základy – betónové pätky
ID_ZD1
Základy – betónová základová doska, izolovaná
ID_LT1
L-type pôdorys – doplatok
ID_ZS1
Zvýšený strop z 2,4 na 2,6 m
ID_PZT
Príplatok za zložitý tvar
ID_OK2
Okná dvojsklo
ID_OK3
Okná trojsklo
ID_ELI
Elektroinštalácia
ID_RVO
Rozvody vody a odpadu
ID_POK
Podlahové kúrenie - elektrické
ID_PLP
Položenie laminátovej podlahy
ID_PJ1
1. Prístrešok nad terasou – jednoplášťový
ID_PD1
1. Prístrešok nad terasou – dvojplášťový
ID_PJ2
2. Prístrešok nad terasou – jednoplášťový
ID_PD2
2. Prístrešok nad terasou – dvojplášťový
ID_TD1
1. Terasa drevená (podlaha vo výške 575 mm)
ID_TB1
1. Terasa betónová, 100 mm hrubá
ID_TD2
2. Terasa drevená (podlaha vo výške 575 mm)
ID_TB2
2. Terasa betónová, 100 mm hrubá
ID_FS1
Fasáda omietková biela (striekaná)
ID_FS2
Fasáda omietková dvojfarebná
ID_FS3
Fasáda omietková trojfarebná
ID_FS2M
Fasáda - dvoj materiálová
ID_FS3M
Fasáda - troj materiálová
ID_STR
Priznaný drevený strop (Trámy s palubovkou)
ID_STRS
Moderný biely strop (Trámy zakryté sadrokartónom)
ID_DOP
Doprava z Bratislavy
ID_VYK
Vykachličkovanie kúpeľne – práca
ID_IND
Interiérové dvere
ID_SCD
Exteriérové schody
ID_OHL
Ohláška
ID_STP
Stavebné povolenie
ID_SCH
Schodisko – drevo, OSB, práca
ID_OPA
Schodisko – Oparketovanie, práca
ID_REE
Revízia elektriny
ID_REB
Revízia bleskozvodu
ID_PTR
Protokol tlakovej skúšky rozvodov
ID_PTK
Protokol tesnosti kanalizácie
ID_ECC
Energetický certifikát
ID_SDD
Stavebný denník
ID_ZA1
Zásuvka
ID_ZA2
Zásuvka Dvojitá
ID_ZA3
Zásuvka Trojitá
ID_ZA4
Zásuvka Štvoritá
ID_ZA5
Zásuvka Pätoritá
ID_ZAE
Zásuvka Exteriérová
ID_KA4
Kábel pre varnú dosku 400 V
ID_KA2
Kábel 3×2,5 (natiahnutie kábla bez krabice, trčiaceho zo steny)
ID_KA2K
Kábel pre termostat
ID_LAN
LAN kábel pre kameru s napájaním cez PoE
ID_VYP
Vypínač
ID_VYPS
Vypínač schodiskový
ID_S6W
Bodové svietidlo 6W
ID_SIN
Svietidlo interiérové - Stropné / Nástenné
ID_SEX
Svietidlo exteriérové - Stropné / Nástenné
ID_ROZ1
Noark 56 modulovy
ID_ROZ2
EATON 56 modulovy
ID_ROZ3
EATON 70 modulovy
ID_ROZ4
ETI 72M modulovy

Simp
Samostatne stojaci prízemný domček s plochou strechou v minimalistickom štýle. Charakterizuje ho čistá biela fasáda a veľkorysé okná, ktoré prepájajú interiér s okolím.
50 m²
|
Dĺžka výstavby:
Počet miestností:
2
HS1,
PR1,
ST3,
OK2,
FS1,
STR,









Moderný domček pre nerušené a štýlové bývanie.
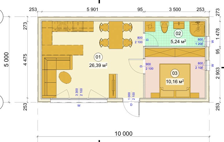
Efektívna dispozícia 2+kk zahŕňa presvetlenú dennú časť a samostatnú nočnú zónu. Ideálne riešenie pre jednotlivca alebo pár hľadajúci súkromie v modernom dizajne.
Financovanie
Špecifikácia
Exteriér domčeka je v bielej farbe, doplnený o vertikálne drevené lamely, ktoré dodávajú fasáde moderný vzhľad. Nočné osvetlenie zabezpečujú minimalistické nástenné svietidlá umiestnené priamo na fasáde. Interiér je rozdelený na hlavnú dennú miestnosť, ktorá spája obývaciu časť s priestorom pre kuchynskú linku a jedálenský kút. Nočnú časť tvorí samostatná nepriechodná spálňa a kúpeľňa vybavená sprchovacím kútom, toaletou a technickým zázemím pre práčku. Celý priestor je opticky prepojený jednotnou podlahovou krytinou a veľkými preskleniami, ktoré zabezpečujú dostatok prirodzeného svetla.






Vypočítajte si cenu domu
Dĺžka výstavby:
Názov projektu
Simp
Plocha
Dĺžka výstavby
Cena
Financovanie








